PBB-Logo4

PBB Baumann

PBB-Logo4

Einfamilienhaus bei Dresden

Neubau eines Einfamilienhauses ohne Keller
Entwurfs- und Werkplanung :                              PBB Baumann
AVA, Objektüberwachung und Dokumentation :    PBB Baumann

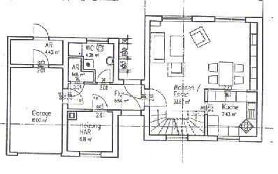
Die Zielsetzung der Bauherrschaft bestand darin ein Haus zu bauen, das den Bedürfnisssen eines Zweipersonenhaushaltes entspricht . Die Gestalltung sollte weitestgehen offen sein. Auf Grund der Gegebenheiten vor Ort ( hoher Grundwasser- stand ) wurde eine Unterkellerung  ausgeschlossen .
Als Buget standen mit allen Nebenleistungen max. 235.000,00  DM zur Verfügung

Es entstand ein Haus mit Wohn/Essbereich mit offener Küche im Erdgeschoß und Schlafen und  Gäste mit Balkon sowie Bad im Dachgeschoß.
Für die Haustechnik , Erdgeschoß - WC und Abstellraum wurde eine “zweite Garage” mit Verbindungs- gang zum Haus geplant

Nitschkeplan1a
Nitschke1b

Die Außenfassade wurde mit Rauhputz versehen. Die Dacheindeckung erfolgte in roten Betondachsteinen .
Der Garagentrakt , ebenfalls weiß geputzt , erhielt umlaufend ein Zinkblechstehfalz- dachabschluß

Der Erdgeschoßbereich ist licht- durchflutet auf Grund der großen Terassenfenster.
Durch den großen Dachüberstand ist ein ausreichender Schutz für den Balkon und die Terasse gegeben

Nitschke2b
BasicLine